NE板链斗式提升机产品概述
提升机是应用最广泛的一种垂直提升设备,该机适用于中、大块和有磨琢性的物料(如石灰石、水泥熟料、石膏、块煤)的垂直输送,物料温度在250℃以下。

双排链斗式提升机(上图为NE50型号)

单排链样式斗式提升机(上图为NE15型号)
NE型板链斗式提升机是由国外引进先进技术研制的新产品,主要技术参数符合机械部标准(JB3926-85)。采用自流式装料,重力式卸料.链条是优质合金钢高强度板式链条,耐磨而可靠。驱动部分采用硬齿面减速器。NE系列板链式斗式提升机共有11种型号:NE15、NE30、NE50、NE150、NE200、NE300、NE400、NE500、NE600、NE800。
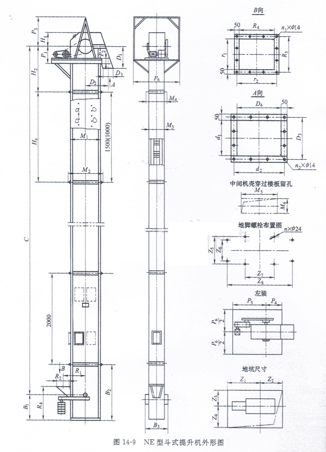
NE板链斗式提升机主要结构
NE系列板链式斗式提升机由运行部件、驱动装置、上部装置、中部机壳、下部装置组成。
驱动装置---采用多种驱动组合驱动,(依用户实际需要而定).驱动平台上装有检修架和栏杆。驱动制装置分左和右装两种。
上部装置---安装有轨道(双排链)、逆止器、卸料口装有防回料橡胶板。
中间节---部分中间节装有轨道(双链),以防止链条工作中摆动。
下部装置---安装有自动张紧装置。
NE板链斗式提升机工作原理
NE系列板链式斗式提升机本机系流入式喂料,物料流入料斗内靠板链提升到顶端,在物料重力作用下自行卸料。本系列提升机规格多(NE15~NE800共11种)提升量广;且生产能高,能耗较低,可逐步代替其他类型提升机,其主要参数见下表。该机采用全封式机壳链速低,几乎无回料现象,因此无功功率损耗少,噪声低,寿命长。NE板链斗式提升机主要特点
1.密封性好,环金污染少。2.操作、维修方便、易损件少。
3.使用成本低,由于节能和维修少,使用成本极低。
4.运行可靠,先进的设计原理,保证整机运行的可靠性,密封性好。环境污染少。
5.结构港型号,精度高。机壳经折边和中间压筋,再经焊接,刚性好、外观漂亮。
6.机械尺寸小,与同等提升量的其它各种提升机相比,这种提升机的机械尺寸较小。
7.输送能力大,该系列提升机具有NE15~NE800多种规格。提升量范围为15~800m3/h。
8.操作方便,维修少,易损件少。输送链为套筒滚子链,诱导式重力卸料,用于各种粉状、块状物粒的垂直提升。
NE板链斗式提升机主要部件特点
1.上部装置:安装有轨道(双排道),防止链条摆动,逆止器,防止料斗回转,物料阻满下部机壳,卸料口装有橡胶板防止回料。2.中间节:部分中间节装有轨道(双排节),以防止链条工作中摆动,部分中间节装有检修门以便维修。
3.下部装置:安装有张紧装置, NE15~NE50采用弹簧张紧,NE100~NE800采用重锤箱张紧。
4.上下链轮采用 ZG310-570。整体调质,HB229-269齿面淬火HRC40~48。
5.板链:链板采用 45 # HRC36~42
NE板链斗式提升机技术参数表
| 型号 |
提升能力 (m³/h) |
斗速(m/s) | 主轴转数(n/min) | 料 斗 |
链条节距 (mm) |
运行部件重量(Kg/m) | 物料最大块度(mm) | ||||||
|---|---|---|---|---|---|---|---|---|---|---|---|---|---|
|
容积 (L) |
斗宽 (mm) |
斗距 (mm) |
|||||||||||
| 允许所占百分比% | |||||||||||||
| 10 | 25 | 50 | 75 | 100 | |||||||||
| NE15 | 15 | 约0.5 | 16.54 | 2.5 | 250 | 203.2 | 101.6 | 27.5 | 65 | 50 | 40 | 30 | 25 |
| NE30 | 30 | 约0.5 | 16.54 | 7.8 | 300 | 304.8 | 152.4 | 35 | 90 | 75 | 58 | 47 | 40 |
| NE50 | 60 | 约0.5 | 16.54 | 15.7 | 300 | 304.8 | 152.4 | 64 | 90 | 75 | 58 | 47 | 40 |
| NE100 | 110 | 约0.5 | 14.13 | 35 | 400 | 400 | 200 | 89 | 130 | 105 | 80 | 65 | 55 |
| NE150 | 170 | 约0.5 | 14.13 | 52.2 | 600 | 400 | 200 | 112.5 | 130 | 105 | 80 | 65 | 55 |
| NE200 | 210 | 约0.5 | 10.9 | 84.6 | 600 | 500 | 250 | 134 | 170 | 135 | 100 | 85 | 70 |
| NE300 | 320 | 约0.5 | 10.9 | 127.5 | 700 | 500 | 250 | 188 | 170 | 135 | 100 | 85 | 70 |
| NE400 | 380 | 约0.5 | 8.3 | 182.5 | 700 | 600 | 300 | 205 | 205 | 165 | 125 | 105 | 90 |
| NE500 | 470 | 约0.5 | 7.1 | 260.9 | 700 | 700 | 350 | 223 | 240 | 190 | 145 | 120 | 100 |
| NE600 | 600 | 约0.5 | 7.1 | 330.2 | 800 | 700 | 350 | 350 | 240 | 190 | 145 | 120 | 100 |
| NE800 | 800 | 约0.5 | 6.2 | 501.8 | 800 | 800 | 400 | 313 | 270 | 220 | 165 | 135 | 110 |
NE板链斗式提升机外形尺寸






