-
皮带输送机常见故障介绍
河南明浩机械主要生产矿用皮带输送机,大致可分为:大型斜皮带输送机,固定皮带输送机,移动皮带输送机。 但是,无论是轻型皮带机还是采矿型皮带机,减速机的打滑,张开,偏离,异响...
2020-04-16 15:47:01 -
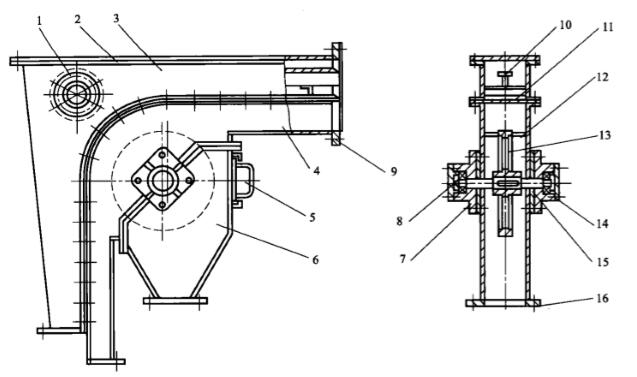
国内皮带斗式提升机发展现状
斗式提升机是垂直连续输送散状物料的输送设备,具有生产效率高、运行状态稳定、噪音低、消耗的动为少(相当于是气力输送的 1/10 到 1/5)、调整方便等特点,被广泛的应用于输送各种散状...
2020-04-15 08:49:59 -
矿井提升机常见故障介绍
矿井提升机是建立在矿井地面与矿下之间,进行人员、物资运输的设备。目前的大型提升机承重量可达到70 吨,运行速度可以达到 10 m / s。但仍然存在调速精准度差,故障排查困难,使用效率低...
2020-04-14 08:21:14 -
皮带斗式提升机皮松度降低的原因
皮带斗式提升机皮松度的特点陷下去。这是由于滚筒的滚面镀胶层受到磨损后掉落,滚筒的滚面两边会凸出来,导致皮带斗式提升机的皮带不定当滚筒和皮带斗式提升机的托辊两者的直径不一样...
2020-04-12 23:42:14 -
皮带斗式提升机皮带跑偏调整常识
皮带斗式提升机皮带松紧度如果不恰当的话,会造成皮带斗式提升机的皮带出现跑偏的情况。皮带斗式提升机皮松度不适的原因带的表面附着物料的时候,会增大皮带和轮子之间的摩擦力,对皮...
2020-04-12 23:41:02
- 联系我们更多
-
- 河南浩明机械设备有限公司
- 联系人:宋经理
- 手机:15837399557
- 邮箱:15837399557@163.com
- 地址:河南省新乡市新东大道166号





